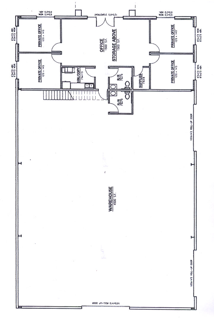
Lemoore Industrial Business Park

Download Plans
Document 1
Document 2
Document 3